Each completed residential project is the result of collaborative journey with the client, to understand how they live now and how their future ambitions will shape the environment in which they wish to live. Every property whether it be new build or the refurbishment of a listed building is explored in detail to ensure that its potential is realised both in terms of scale and context. We are well versed in all aspects of the process from feasibility studies and planning through to snagging and handover, both in the UK and with professional partners internationally.
To
achieve the desired outcome, we always produce a complete Technical
Design Package. This means that all decisions will be made up-front
and there will be a comprehensive set of drawings, specifications,
and schedules. These documents will serve as the comprehensive guide
for the construction team, contractors, and subcontractors.
This
is important to achieve a build that is on time and on budget, we
need to enable early decision making. Making decisions on site when
the house is being built, will inevitably lead to issues with
coordination, and change orders that cause delay and increase cost.
If
the construction process involves competitive bidding, manage the
tendering process by inviting contractors to submit bids based on the
construction documents. Evaluate the bids and assist the client in
selecting the most suitable contractor for the project.
Conduct
a pre-construction meeting with the selected contractor and the
construction team. Clarify any queries related to the construction
documents, timelines, and project expectations.
Oversee
the construction phase, acting as the client's representative to
ensure that the construction adheres to the approved technical design
and meets the desired quality standards.
Regularly
visit the construction site to inspect the progress and quality of
work. Address any issues that arise during construction and provide
solutions as needed.
Maintain
open and regular communication with the client, contractors, and
consultants to ensure a collaborative approach throughout the
construction process.
Address
any unforeseen challenges or changes that may arise during
construction and work with the construction team to find suitable
solutions.
Oversee
the final stages of construction, including the finishing touches and
completion of the building. Conduct a final inspection to ensure that
the project meets the technical design requirements and is ready for
occupancy.
By
effectively delivering the technical design and managing the
construction process, the architect plays a vital role in ensuring
that the house is built according to the client's vision, in a timely
manner, and within the specified budget. Throughout the construction
phase, the architect acts as the client's advocate, helping to bring
the design to life and ensuring the successful completion of the
architectural project.
DELIVERING
A PROJECT
from pre-design to completion and handover
pre-design - preparation and brief
Meeting
with the client to understand their needs, expectations, and
objectives for the project.
Set
sustainability and explore
options for energy efficiency, renewable materials, and eco-friendly
design solutions.
We
sign appointments.
We
seek inspiration in the local area.
We
conduct a thorough analysis of the site and its surroundings. This
information will influence the design and ensure it responds
appropriately to the context.
We
organize all required surveys, for example: arboricultural,
topographical, ecological.
By thoroughly preparing and developing a project brief, architects can ensure that the design aligns with the client's vision and meets all the necessary requirements for a successful and cohesive architectural project.
We
will explain and discuss the options for procurement (how the project
is built and by whom) and consider this in our designs. We will also
keep practical matters such as structure and services in mind, so
that these elements are integrated into our outline designs. We will
also consider any time constraints for reports, surveys etc. that
needs carrying out.
We
advise the early appointment of consultants as it will assist in the
design of the building.
Eco-friendly
and renewable materials will be prioritized throughout the design.
We
often advocate engaging the planners early, and at the end of this
stage we may submit a pre-application for advice. This collaborative
approach allows planners to connect with the design and offer early
advice which will allow us to develop the scheme.
We
finalise plan arrangements, materiality, and positioning on site.
We
liaise with consultants and produce information for a planning
application - taking into account local policy, and additional
reports that may be required.
CAD
plans will be prepared, sections and elevations, as well as a Design
and Access Planning Report. We also produce Interior Design Concepts
at this stage.
Advanced
computer software is used to create 3D visualizations and renderings
that provide a more realistic representation of the design. These
visuals help clients better understand how the project will look once
completed.
During
the design development stage, specific materials and finishes are
selected for various elements of the project, including walls,
floors, ceilings, and facades. The choice of materials takes into
account aesthetics, durability, and budget.
We
will collaborate with structural engineers during this stage to
integrate the structural system seamlessly into the design.
Structural considerations influence the layout and architectural
elements of the building.
A
cost estimation is prepared based on the detailed design development.
This helps the client understand the budget implications of the
design decisions and may lead to further refinements as needed.
The
design of the building envelope, including walls, windows, and roofs,
is further refined to optimize energy performance, daylighting, and
thermal comfort.
Landscape
design is integrated into the overall project during the design
development stage. This includes outdoor spaces, planting, hardscape,
and site circulation.
We
will submit the application and there will then be a consultation and
decision period. The length of this can vary depending on the type of
application but is typically 8 weeks.
technical
design and tender pack
we
lead the work of the design team
coordinate
consultants work
for
a comprehensive working drawings package
and
careful selection and integration of materials and products
and
continuous review in both 2d and 3d
to
communicate effectively with you
to
ensure the design intent in the built project is achieved
The
technical design stage begins with a thorough review of the
conceptual design. Any necessary adjustments or refinements are made
to ensure that the design is feasible and aligns with the project's
objectives.
During
this stage we will have multiple meetings with you to finalise all
details and choice of materials and products.
We
will meet with consultants to refine and co-ordinate the design, and
to ensure that other disciplines are fully integrated.
Before
we tender the project to contractors, we ensure that a detailed
Technical Design package has been produced. The tender returns will
only be as good as the information that we issue. Excellent documents
will ensure a more accurate price and significantly less risk during
construction.
We
will ensure that the design complies with local building regulations.
This includes considerations for structural safety, fire safety,
accessibility, environmental standards, and energy efficiency.
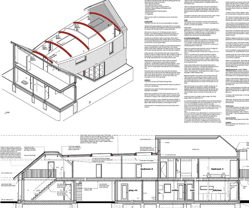
Collaboration
with structural engineers is essential during the technical design
stage to develop the structural framework of the building. The
architect and engineers work together to integrate structural
elements seamlessly into the design.
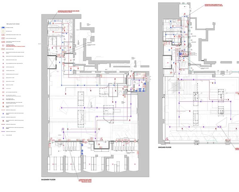
The
integration of MEP systems is crucial for the building's
functionality.
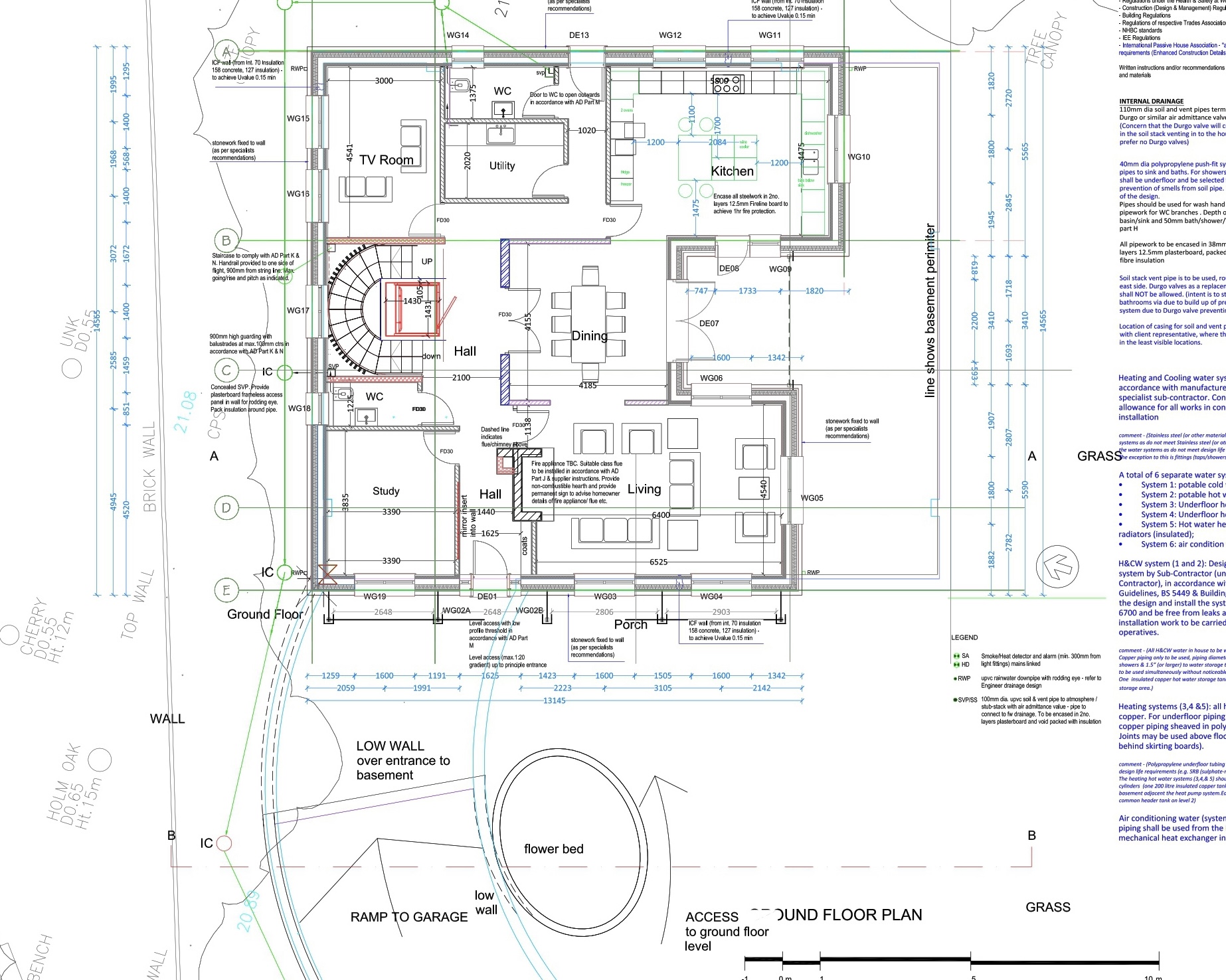
Detailed
construction drawings are created, including plans, elevations,
sections, and details.
architect
and the client collaborate to finalize materials, finishes, and
interior elements.
A
cost estimation is prepared based on the detailed technical design.
A
comprehensive set of written specifications is developed, detailing
the quality standards and installation requirements for materials and
systems used in the construction.
The
project information is reviewed by chosen contractors, and they put
forward their cost to build it. There is then a period of analysis,
when we will go through the tender returns with you (and preferably a
cost consultant); we may arrange meetings with them to talk through
any queries, concerns or potential working methods. There may be some
negotiation that takes place, with a view to selecting a contractor
and signing the contract with them.
By
the end of the technical design stage, the project is ready for
construction, and the architect's detailed plans and specifications
serve as a roadmap for bringing the architectural vision to life.
Construction
The
actual build starts
We
review and check fabrication details
And
specialists’ items such a stairs
We
attend the site regularly during construction
Answer
contractor questions and help with solutions
We
attend site and check quality and progress of work
And
are there throughout the build to make the process as smooth as
possible
Before
construction begins, the site is prepared and organized
During
the construction stage, all necessary permits and approvals are
obtained from local authorities, ensuring that the project adheres to
regulations and complies with building codes.
Our
role is not to project manage the contractor’s work, but to ensure
that the contract documents are adhered to.
A
Contract Administrator (CA) will administer the building contract and
certify any sums of money to be paid to the contractor.
The
CA's role is to ensure the process runs smoothly, that all parties
get along during the build, and that everyone is treated fairly and
impartially.
All
construction materials, equipment, and fixtures are procured
according to the project specifications.
Throughout
the construction stage, the architect monitors progress, addresses
any unforeseen challenges, and ensures that the project remains in
alignment with the original design intent. Effective communication
and coordination among all parties involved are critical for the
successful execution of the construction process.
Conduct
a final inspection of the completed building to ensure that it meets
all the design requirements, quality standards, and safety
regulations. Any remaining issues or deficiencies are addressed and
rectified.
If
the building has complex systems, such as HVAC or energy management
systems, commissioning is carried out to verify that these systems
function correctly and efficiently.
When
a period of 12 months has passed, we will work to ensure that
everything is resolved and only then issue the final certificate,
thereby concluding the building contract.
Maintain
open communication with the client after handover to address any
post-occupancy issues or questions that may arise.
Overall,
the post-completion and handover stage ensures that the architectural
project is successfully transitioned from construction to occupation.
The architect's involvement during this stage helps ensure that the
building functions as intended, and the client is satisfied with the
final result.
This site uses analytics cookies to collect data in aggregate form and third-party cookies to improve the user experience. Generally the services do not release cookies unless the user explicitly uses the service (eg by clicking).